Floor Plan Redraw for Real Estate Listings
2D and 3D Floor Plans That Help Buyers Understand the Space
Turn sketches, photos, or old plans into accurate 2D and 3D floor plans that make listings easier to understand and easier to sell.
- ✓ Clean, accurate floor plans from sketches or photos
- ✓ Consistent output across listings and portfolios
- ✓ Fast turnaround with revisions included
- ✓ Ready for MLS, marketing, and property websites


Why Floor Plans Matter in Real Estate
Floor Plans That Make Listings Easier to Understand and Easier to Sell
Most buyers struggle to understand space from photos alone. A clear floor plan removes guesswork and helps them decide faster, with more confidence.
Better visualization
Help buyers instantly understand layout, room connections, and proportions.
Higher buyer interest
Listings with floor plans feel more complete and trustworthy to online buyers.
Stronger online performance
Improve engagement, time on page, and click-through on listing platforms.
Faster decision-making
Reduce confusion and help buyers self-qualify before scheduling a visit.
Why Floor Plans Drive Better Listings
Why 2D and 3D Floor Plan Redrawing Is Essential
Buyers need more than photos to understand a property. Floor plans provide the clarity that helps them move forward with confidence.
A floor plan shows how a home is organized, how rooms connect, and how the space actually functions. It gives buyers a clear understanding of layout, proportions, and flow that photos alone cannot provide.
In online listings, this clarity matters. Without a floor plan, buyers are often unsure about room sizes, usability, and overall layout. That uncertainty leads to hesitation and drop-off.
Accurate 2D and 3D floor plan redraws remove that friction. They help listings stand out, make properties easier to compare, and support faster, more confident buyer decisions.
For real estate professionals, floor plans work as a silent sales tool that answers key questions before a showing ever happens.
.gif&w=1200&q=75)
Built for Real Estate Professionals Who Need Clarity at Scale
Whether you are a real estate agent, broker, photographer, property manager, or developer, floor plans are a must-have for modern listings.
2D Floor Plan Redraw


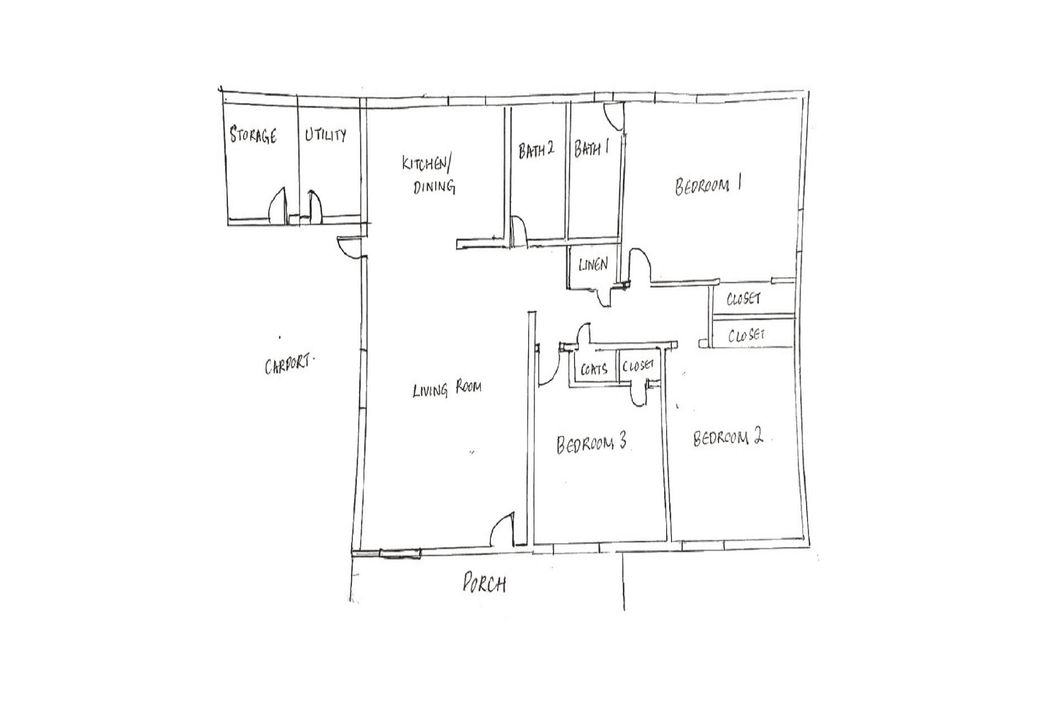
2D Basic Floor Plan in Black and White
A clean, accurate way to show a property’s layout without visual distraction.
The 2D black and white floor plan clearly presents room placement, flow, and proportions so buyers can understand the space at a glance. It removes guesswork and helps listings feel more complete and trustworthy. Built for MLS listings and property marketing, each plan includes clear labels and measurements to show how the home is organized.
- Room names and clear labeling
- Clean layout optimized for online listings
- Unlimited revisions included
- Secure payment checkout


2D Basic Floor Plan With Furniture in Black and White
A clear way to show layout, scale, and how furniture fits in each room.
The 2D floor plan with furniture adds context to a property’s layout by showing how rooms can be furnished and used. It helps buyers understand room size, spacing, and flow by placing common furniture elements directly into the plan. This option is ideal for buyers who want to visualize livability, not just structure. Furniture placement makes it easier to judge proportions and imagine real-life use of each space.
- Furniture placement for key rooms
- Accurate proportions for better scale understanding
- Clean black and white style for MLS and marketing use
- Unlimited revisions included
- Better visualization for buyers


2D Color Floor Plan
A visually clear way to highlight layout, room types, and flow.
The 2D color floor plan adds visual clarity by using color to define rooms and functional areas. Each space is easy to distinguish, helping buyers quickly understand how the home is laid out. Color coding makes it easier to identify room types, compare spaces, and follow the flow of the property. This option works especially well for listings where visual differentiation helps buyers understand smaller or more complex layouts.
- Color-coded rooms for easy identification
- Improved visual clarity for online listings
- Better visualization for buyers
- Guaranteed satisfaction
- Delivered within 48 hours


2D Color Floor Plan With Furniture
A complete visual that shows layout, room use, and scale at a glance.
The 2D color floor plan with furniture combines clear layout with visual context. Color coding helps distinguish rooms, while furniture placement shows how each space can be used. This format makes it easier for buyers to understand proportions, flow, and livability. It is especially effective for helping buyers picture daily life in the home before they visit in person.
- Color-coded rooms for quick understanding
- Furniture placement for key living spaces
- Better visualization for buyers
- Guaranteed satisfaction
- Delivered within 48 hours
3D Floor Plan


3D Basic Floor Plan
A detailed way to show layout, depth, and spatial flow.
The 3D basic floor plan gives buyers a realistic view of the home’s layout by adding depth and perspective. It helps them understand how rooms connect and how the space feels, not just how it is drawn. By showing wall heights, door swings, and flooring transitions, this format makes it easier for buyers to visualize the property as a whole. It works well for listings where spatial clarity helps buyers feel confident before scheduling a visit.
- 3D perspective for better spatial understanding
- Clear room layout and connections
- Visible door swings and flooring transitions
- Strong visual clarity for online listings
- Delivered within 72 hours


3D Color Floor Plan
An immersive view that shows layout, materials, and how the home comes together.
The 3D color floor plan brings the property to life by combining spatial depth with realistic materials and finishes. It helps buyers understand not only how rooms connect, but how the home will look and feel. With furniture, flooring, cabinetry, and surface finishes shown together, this format gives a complete picture of the space. It is ideal for listings where buyers need a deeper level of clarity before making a decision.
- 3D perspective with realistic materials and finishes
- Furniture placement for key rooms
- Clear room layout and spatial flow
- High visual clarity for marketing and presentations
- Delivered within 72 hours


Site Plan
An overall view of the property and its surroundings.
A site plan adds important context by showing how the home sits on the land. It gives buyers a clear view of the exterior layout, outdoor spaces, and surrounding elements. This is especially useful for properties with landscaping, pools, driveways, or multiple structures. Site plans help buyers understand lot size, outdoor flow, and how the home relates to its surroundings.
Available as an add-on during checkout
- Overall property and land layout
- Landscaping and outdoor features
- Driveways, garages, and access points
- Better visualization for buyers
How It Works
Floor Plan Redraw in 3 Easy Steps
Upload your sketch, we redraw it professionally, and deliver within days.

Upload
Upload your hand-drawn sketch, blueprint, or existing floor plan. Include room measurements and any special requirements.

Redraw
Our team of experts redraws your floor plan into a professional 2D or 3D format with accurate measurements, labels, and room names.

Deliver
Receive your polished floor plan within 48–72 hours depending on the plan type. Rush delivery is also available.
STATISTICS
Proof at Scale
Trusted virtual staging for faster leasing and stronger listings.
25,000+
Real estate professionals served
Agents, teams, and brokers who use Styldod for listing-ready photos.
150,000+
Images delivered
Virtual staging completed across thousands of listings and markets.
6+ years
Operational experience
Refined workflows for speed, revisions, and consistent quality.
Testimonials
What our customers are saying
Kathren Hatayama
Realtor, Los Angeles
Anita Beaman
Realtor, Michigan
Lauren Tucker
Realtor, California
Drew Thompson
Realtor, Westfield
I appreciate that you have good designers. When I submit a vacant space they know how to stage it so it looks complete. I've used other companies where even after it's "virtually staged" the space looks bland. I like how your team accessorizes for a completed staged look.

Ana Orellana
Sales Associate, Century 21 Union Realty Co.
Styldod is a fantastic partner to have by your side! Effective, impactful and OUTSTANDING customer service and communication. Pricing is superior to other service providers and their commitment to their clients is second to none. Thank you to the Styldod team for all you do!

Jane
Coldwell Banker
The team was very responsive and I had a quick turn-around on the staging pictures. I thought they were done very well and looked real. Hard to tell that they were virtually staged. I will definitely be using Styldod again. Thank you!

Darin Cruzen
Broker, RE/MAX Metro Realty.
I'm going to start sending projects your way for every listing I get. I look forward to working together. I'm dropping box brownie for sure.

Lisa Johnson
Parks Realty
Styldod has changed the way we present our listings. The quality is consistently excellent and the turnaround time is impressively fast. I recommend Styldod to every agent I know.

Amir Fouad
CRS - Broker
Kathren Hatayama
Realtor, Los Angeles
FAQs
Questions About Floor Plan Redraw
You can upload hand-drawn sketches, photos, PDFs, or existing plans. Clear images with visible dimensions help us deliver the most accurate result, but rough inputs are acceptable.
Yes. All floor plans are designed to be clean, professional, and MLS-friendly. They are suitable for listing portals, property websites, marketing materials, and client presentations.
Yes. Unlimited revisions are included. You can request adjustments to layout, labels, furniture placement, or other details until the plan matches your needs.
You will receive high-resolution image files suitable for web and print.
Most 2D floor plans are delivered within 48 hours. 3D floor plans are delivered within 72 hours, depending on complexity.
Yes. You receive full usage rights to use the floor plans for listings, marketing, websites, brochures, and presentations.
Yes. We can create floor plans for apartments, duplexes, townhomes, and multi-dwelling properties. Pricing is calculated per story.
Yes. Your files are handled securely and are never shared. We store files temporarily and remove them after the storage period.
What We Offer
Explore All Services

From $16
Virtual Staging
Turn vacant rooms into stylish, beautifully staged spaces that help buyers fall in love with your listings.

From $24
Commercial Virtual Staging
Stage commercial spaces virtually to help buyers visualize their business setup.

From $25
Matterport Virtual Staging
Create immersive 3D walkthroughs with tastefully furnished Matterport tours.

From $5
Virtual Renovation
Virtually renovate walls, floors, kitchens, bathrooms, and more.

From $15
Occupied to Vacant
Remove dated or cluttered furnishings from your listing images.

From $4
Day to Dusk
Turn daylight home photos into eye-catching dusk images.

From $8
Object Removal
Remove unwanted or distracting items from your listing photos.

From $1.50
Image Enhancement
Brighten, sharpen, balance, and remove reflections in your listing photos.
%25201.png&w=828&q=75)
From $250
3D Rendering
Showcase your unbuilt property with photorealistic 3D renderings.

From $1.50
360° Virtual Tours
Create beautifully immersive virtual tours using 360-degree images.
From $30
Single Property Video
Create beautifully immersive property videos from your listing photos.

From $60
Real Estate Video Editing
Professional video editing to help sell your listings faster.
Need Consistent Staging Across a Portfolio?
Standardize style, revisions, and delivery across listings.